Leiria, Óbidos, Santa Maria, São Pedro e Sobral da Lagoa, Arelho
É com elevada distinção que se apresenta esta notável moradia T2 isolada, situada em prestigiado condomínio fechado na serena localidade de Arelho. Esta propriedade representa o equilíbrio perfeito entre conforto, privacidade e proximidade com a natureza envolvente.
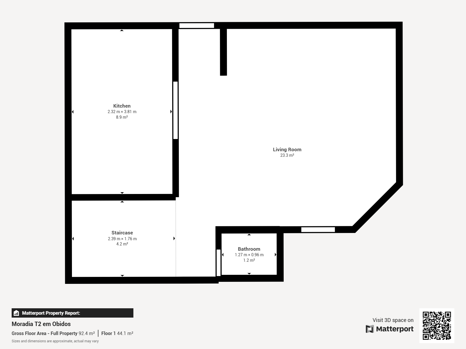
A moradia desenvolve-se em dois pisos cuidadosamente distribuídos. No piso térreo, encontra-se uma ampla sala de estar, dotada de lareira com recuperador de calor, ideal para criar um ambiente acolhedor nas tardes de Inverno. A cozinha, inteiramente equipada com eletrodomésticos, revela-se bastante funcional. Neste piso, destaca-se ainda uma casa de banho social.
No primeiro piso localizam-se dois quartos de repouso, ambos generosamente dimensionados, sendo ambos suíte, provida de casa de banho privativa. Esta zona foi concebida para oferecer máxima serenidade e conforto.
No exterior, a moradia dispõe de espaço privativo, área de lazer com churrasqueira, e acesso direto à piscina privada da moradia — ideal para desfrutar dos dias soalheiros em pleno. A propriedade beneficia ainda de lugar de estacionamento exclusivo e apresenta uma excelente exposição solar ao longo de todo o dia.
A localização é outro dos seus trunfos: a escassos minutos da idílica Lagoa de Óbidos, onde a natureza se revela em todo o seu esplendor, e a curta distância da pitoresca vila medieval de Óbidos, celeiro de cultura e história. A moradia encontra-se bem servida por rede de transportes públicos, facilitando o acesso a serviços, escolas e principais vias rodoviárias.
Esta é uma oportunidade rara para quem deseja aliar tranquilidade, conforto e prestígio numa só morada.
Se desejar adaptar o estilo para uma brochura imobiliária ou para publicação em plataformas online, posso também ajustar o texto para um tom mais direto ou comercial.